ABOUT US
关于金海滨
全部分类
详情


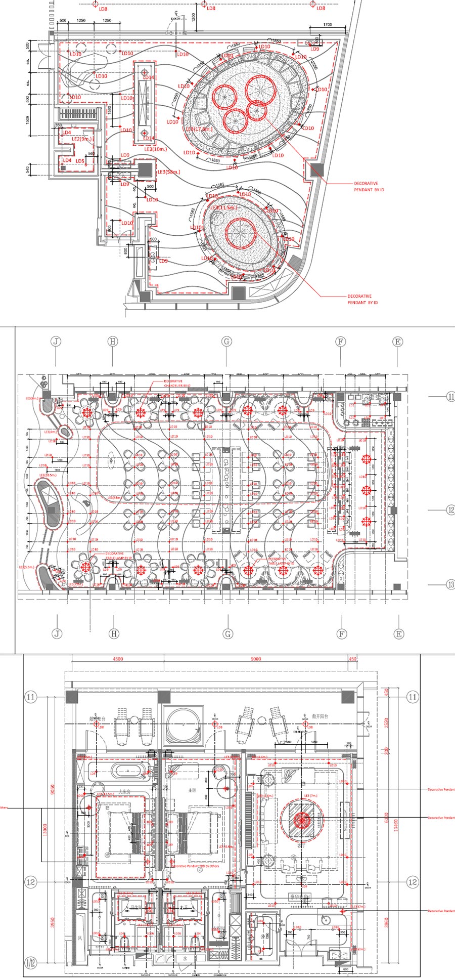
索菲特酒店(sofitel)是一家跨国奢华酒店,其连锁的酒店分布于40个国家地区,共有192家连锁店。首家索菲特酒店1964年于法国斯特拉斯堡,1997年加入雅高集团。福建香山湾美憬阁索菲特酒店是由漳州万新集团投资建设,法国雅高酒店管理集团管理的奢华涉外五星级度假酒店。 酒店位于香山湾26公里的原生态海岸线,碧海银沙,海天一色,坐拥丰富的一线滨海景观。交通便利,至厦门只需40分钟车程。辐射全国乃至世界的闽台文地、国际商务交流平台、生态主题度假天堂、海上运动娱乐天地和世界级滨海居住休闲新城。
福建香山湾索菲特酒店项目(深化图)
扫二维码用手机看
上一个:
无
下一个:
新疆五江温泉国际大酒店
上一个:
无
下一个:
新疆五江温泉国际大酒店
手机店铺
联系方式
电话:86-755-88836122/27570357
手机:13392894618
传真:86-755-29511266
电子邮箱:sales@1187223.com
网址:www.1187223.com
版权所有 金年会平台入口 Copyright © 2022 网站建设:中企动力 深二分